Computacenter House

Gatwick Road, Crawley, West Sussex, RH10 9RD

In collaboration with

Computacenter House offers a versatile, self-contained office building designed to inspire potential tenants with its adaptable layout and welcoming atmosphere. This detached building spans two floors with a striking full-height reception area and features 43 parking spaces conveniently located in front and behind.

The current layout combines open-plan areas with private offices and meeting rooms, but the space’s flexibility allows for a wide range of configurations, including split occupancy, serviced offices, or even a co-working hub. Our designs highlight the building’s potential, inviting new tenants to envision their future workspace.

Minor Refubishment

This layout makes use of the existing partitions and overall structure of the space, illustrating how the area can be transformed simply by introducing new furniture. This approach allows the user to enhance the functionality and aesthetic of the space with minimal structural changes. They could choose to stop at this stage, or they could go further by updating flooring, ceiling tiles, and wall decor to create a fully refreshed and personalised environment that reflects their brand or style. This flexible plan provides options to suit both budget and vision, from a quick refresh to a more comprehensive transformation.

Computacenter House Office Layout using existing partitions and a minor refurbishment
Meeting Room for 12 people
Staff Breakout Area
Individual Offices
Informal Meeting Booths
48 Open Office Desk Spaces

Ground Floor

Computacenter House Office Layout using existing partitions and a minor refurbishment
U Shaped Media Meeting Room
Retaining existing Storage
Informal Meeting Area for group projects
Private 2 person office
48 Open Office Desks

First Floor

Major Refubishment

This layout reimagines the building by stripping it back to its core structure, allowing a company to infuse the space entirely with their unique ethos and personality. Modern glass partitioning includes private video call rooms, perfect for supporting online meetings without disrupting others in the office.

Open-plan breakout areas foster a sense of openness and inclusivity, encouraging collaboration and informal interactions. In the main meeting space, moveable walls provide maximum flexibility, enabling the area to be reconfigured for different group sizes or events.

Flooring and decor can be customized to reflect the company’s branding, enhancing a cohesive and branded environment.

Additionally, new ceilings, upgraded lighting, and the large windows will combine to create a bright, airy atmosphere that feels welcoming and energising for all users.

Computacenter House Office Layout with a major refurbishment of the space
Open plan breakout area
Private single person video call rooms
Various sized private offices

Ground Floor

Computacenter House Office Layout with a major refurbishment of the space
Movable Partitions between meeting rooms
Large staff breakout area
Printer Area
Mixture of private offices and meeting spaces

First Floor

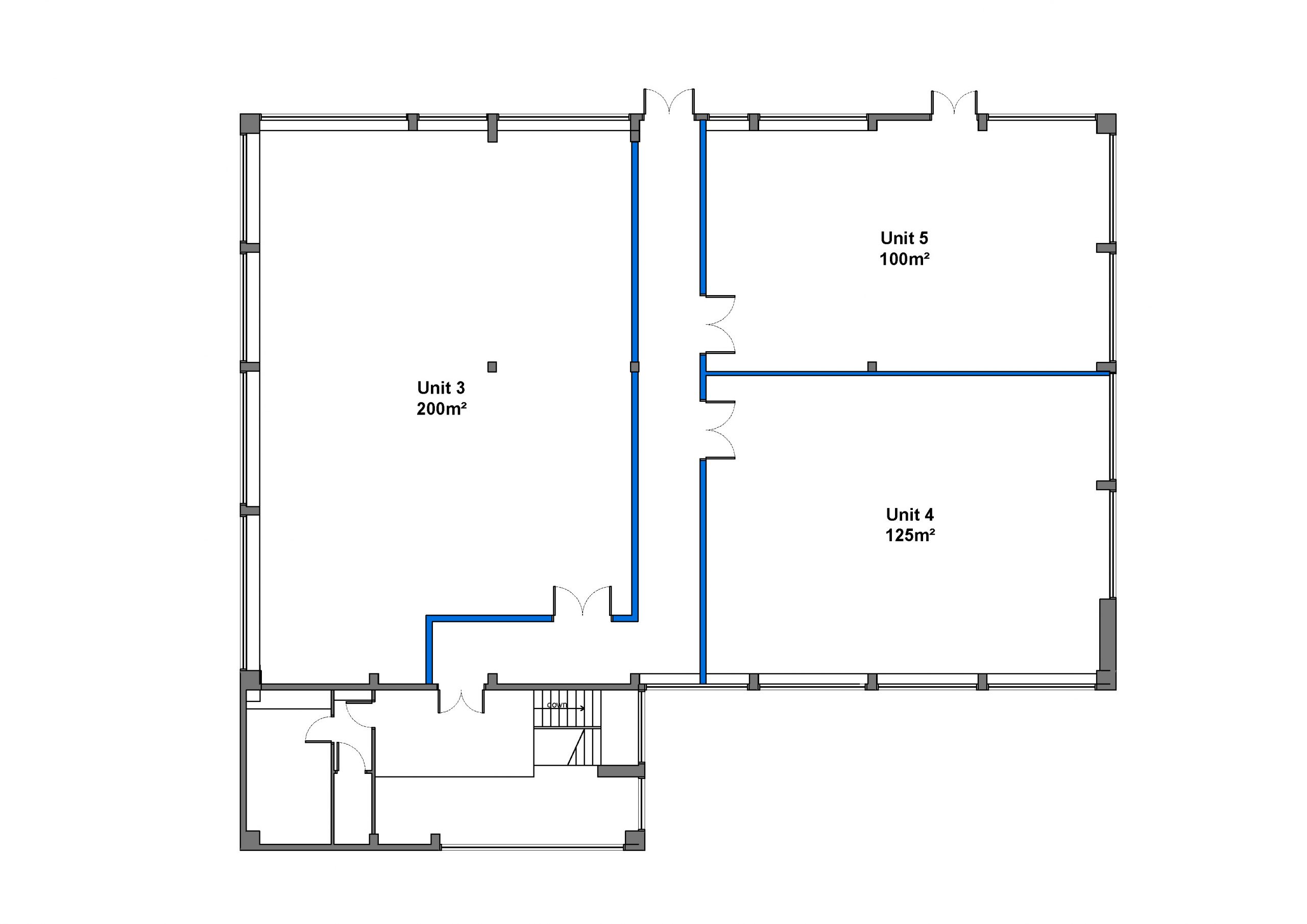
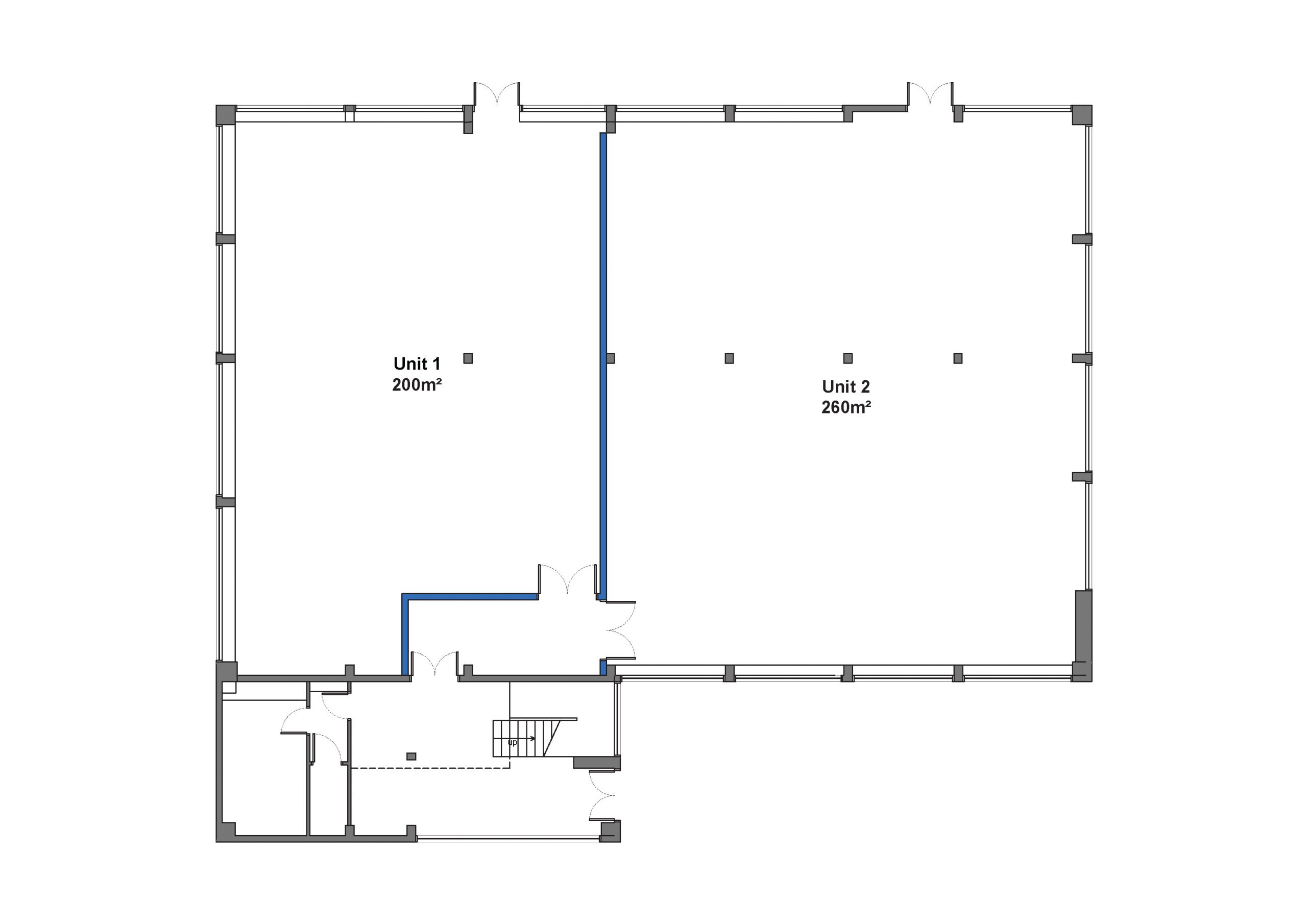
Split Occupancy

The expansive size of the building, along with its shared lobby, makes it ideal for a split-occupancy setup, offering flexibility for multiple tenants. In this design concept, we’ve divided the office into five distinct spaces of varying sizes to accommodate different types of businesses.

Each space is self-contained and includes appropriate fire exits, ensuring that safety standards are met for all occupants. This layout maximizes the building’s potential by providing a mix of office sizes, appealing to a broader range of tenants, from small startups to larger teams. By utilizing shared amenities like the lobby and common areas, each occupant can benefit from a professional environment with access to communal resources, creating a collaborative yet independent workspace within a single building.

Computacenter House Office Layout showing split occupancy

Ground Floor

Computacenter House Office Layout showing split occupancy

First Floor

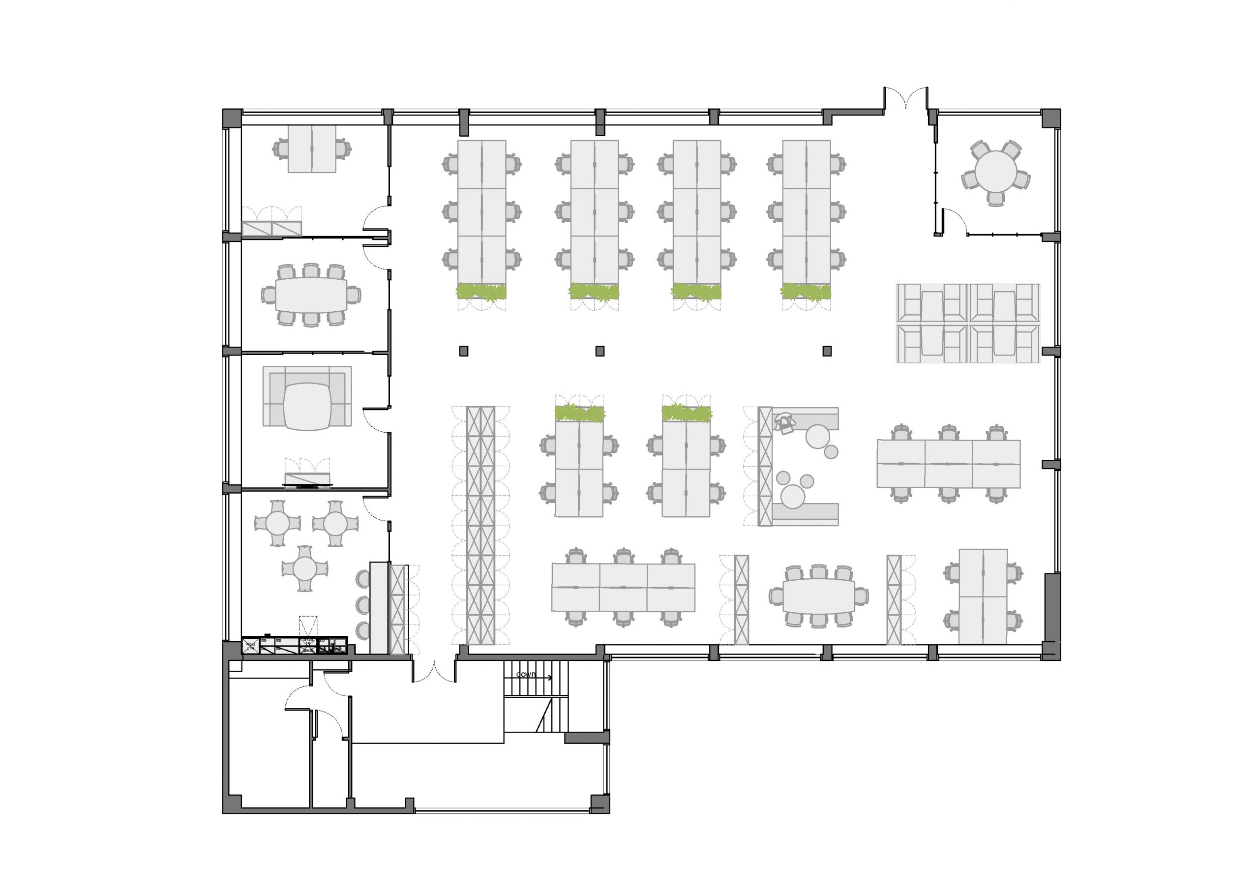
Serviced Offices

Serviced offices provide an excellent benefit for companies, allowing them to step into a fully-equipped workspace that’s ready for immediate use. This layout divides the office into 17 individual offices, each with seating capacity ranging from 2 to 18 desks, catering to businesses of different sizes. Tenants benefit from shared amenities, including restroom and refreshment facilities, as well as bookable meeting rooms and convenient ad-hoc meeting booths. This setup offers companies a seamless experience with everything they need on-site, from collaborative spaces to private offices, creating an ideal environment for productivity and growth without the need for setup or long-term commitments.

Computacenter House Office Layout showing serviced offices

Ground Floor

Computacenter House Office Layout showing serviced offices

First Floor

What we can do for you!

Design and Planning

We design office spaces tailored to each client’s needs and brand. By understanding their vision and workflow, we create layouts that maximize functionality and style. From furniture selection to lighting and adaptable layouts, we focus on details that enhance productivity and inspire those using the space.

Fit-out and Refurbishment

Our dedicated team of contractors is ready to bring any project to life with skill and efficiency. With expertise across all areas of construction, from carpentry and electrical work to finishing details, our contractors ensure each phase of the build meets the highest standards. We work closely with clients to deliver projects on time and within budget, handling every aspect of the build so clients can focus on their business while we turn their vision into reality.

Office Furniture

We provide high-quality office furniture solutions tailored to enhance any workspace. Our range includes ergonomic chairs, versatile desks, collaborative workstations, and stylish storage options that combine comfort, functionality, and modern design. We handle everything from selection to delivery and installation, ensuring a seamless experience for our clients.

Electrics and Data

Electric and data infrastructure is essential for a functional and efficient office space. We provide comprehensive solutions that include installing power outlets, data cabling, and network systems to support everything from computers and lighting to high-speed internet and communication devices. Our team ensures all electrical and data points are strategically positioned to accommodate current needs while allowing for future growth.

Lighting

Office lighting plays a crucial role in creating a productive and comfortable work environment. We provide tailored lighting solutions ensuring that spaces are well-lit and conducive to focus. From energy-efficient LED fixtures to task lighting and ambient lighting, we design lighting systems that reduce eye strain and enhance the overall atmosphere to create a bright, welcoming office that boosts productivity and supports employee well-being throughout the day.

Ceilings, Partitioning and Flooring

Ceilings, partitions, and office flooring are key elements in shaping a functional and attractive office space. We offer a variety of ceiling solutions, from acoustic tiles that improve sound quality to suspended systems that allow for easy access to utilities. Our partitioning options provide flexibility and privacy, whether you need open-plan spaces or more enclosed areas for meetings and focused work. We supply a wide range of office flooring, including durable vinyl and carpets.

We can design a bespoke layout for you!

If you’re considering leasing this space, we can design a custom layout tailored specifically to your company’s needs. Our team takes the time to understand your workflows, branding, and future growth plans, creating a space that enhances productivity and reflects your company culture.

From layout planning to selecting finishes and optimising lighting, we’ll ensure the design perfectly aligns with your vision, resulting in a workspace that’s both functional and inspiring.

Get in Touch

Our Featured Projects

Office Fit Out Redhill
Chaotic | RedhillFeaturedOffice

Chaotic | Redhill

Read More
East Grinstead Office Fit Out
Insurance Company | East GrinsteadFeaturedOffice

Insurance Company | East Grinstead

Read More
The Menu Partners | LondonFeaturedOffice

The Menu Partners | London

Read More
NuServe | CrawleyFeaturedOffice

NuServe | Crawley

Read More
Alexander Lloyd | CrawleyFeaturedOffice

Alexander Lloyd | Crawley

Read More
Roam | CrawleyFeaturedOffice

Roam | Crawley

Read More

What we do

Hear from our happy customers

Michael Deacon JacksonFTD Johns

We had the pleasure of working with our neighbours, CID Spaces, for our office fit-out, and we are very happy with the results. The communication and standard of workmanship was outstanding, and they completed the project on time and within budget. I can highly recommend CID Spaces.

Eddie DavisEJD Project Solutions

I have worked on many projects with CID Spaces, most recently completing a successful Fit-Out project for my client in King William Street, London. CID Spaces are a very professional, experienced, flexible and reliable company. All the team strive to keep their customers happy, projects are delivered on time and within budget and I have always found them to be very competitive when tendering against competitors. I highly recommend CID Spaces.

Sue FullardFullard Rosier Chartered Surveyors

The client is delighted with the way you handled the project and the end result. I know that he has already passed on your details to someone else who has had difficulties with London fit outs, so hopefully, there will be more of the same in the pipeline for you. From the experience I had CID, I am more than happy to make the recommendation, and will continue to do so for you when I am in a position so to do.

Charlie ToonRoam

I just wanted to say thank – the office looks amazing. Jason has been a dream, he’s polite, clean, tidy and ever so helpful. Our team really took to him and adopted him as one of our own.

Andrew DungateSES Water

I’ve only had positive comments about the work carried out by CID Spaces. Our MD was very impressed with the work. He said he didn’t notice anything until this morning which proves it was a neat and tidy job! Laura has said that we aren’t going to recommend you to anyone else... just in case you can’t fit our work in!

Stuart AyrtonCello Health

Working with yourselves and the rest of your extended team really has been a pleasure. I will sing your praises and recommend you to all with in our team and outwards. If you think our new office will assist in any new business negotiations I’d love to show it off. I have had amazing feedback from the senior team about here so thank you for that.

Robin RobertsSutton Housing Society

We worked with CID Spaces to help us transform our office space – these works included a new reception, board room, offices, break out spaces and communal kitchen. The finished spaces work well, we continue to receive compliments from everyone who visits. The space has a timeless look and was finished to an exceptionally high standard!

Darren MulhallSteriTech

We engaged CID Spaces for the design and fit-out of our office and we couldn’t be more satisfied with the results. Working with CID was a pleasure, their senior team were involved from the start and we were impressed at how they bought into our brief and brought suggestions to us. CID Spaces handled the entire refurbishment, with great attention to detail. The build went smoothly, and quality of the workmanship was excellengt.

Ryan MarshallRoam

Highly recommend CID Workspace. It was a seamless transition, with their team more than happy to work around us during standard office hours - checking in first when scheduling the different stages of work to ensure there was minimal disruption to areas such as the meeting rooms.

Jackie HarmsworthAerFin

CID Spaces have completed two refurbishment projects for us, both of which have been very successful. As a Company we would happily use CID again and recommend their services to others.

Glynis GatenbySutton Housing Society

I'd like to offer our appreciation of the chaps that have been working on the scheme carrying out the lounge refurbishment. Without exception they have been quiet, polite, helpful and a joy to have around – they can’t speak highly enough about them.

Nick KeaneyNick Baker Architects

I very much trust we can continue to find things to work together on. It has been a pleasure in this day and age, with so many unhelpful and contractual contractors, to work with your company.

Sara MitchellBytes Software Services

CID Spaces recently completed a refurbishment of our at our offices. The workmen were tidy and cordoned off the refurbishment area well which was important as the work was carried our during office hours. The project was finished on schedule and within budget, and I am very pleased with the quality of the work. All the team there are extremely pleasant to work with and I would have no hesitation in recommending them.

Get in touch